48 久慈市山形町繋
ページID : 5260

| 区分 | 内容 |
| 空家番号 | 48 |
| 所在地 | 久慈市山形町繋第13地割32番地2 |
| 構造 | 木造平屋建て |
| 形態 | 売却 |
| 価格 | 250万円 |
| 補修の要否 | 多少の補修必要 |
詳細情報
| 区分 | 内容 |
| 構築年 | 平成2年(築35年) |
| 敷地面積 | 439平方メートル |
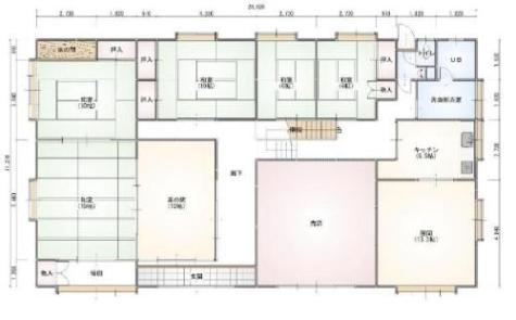
| 延床面積 | 224.97平方メートル |
| 電気 | 引き込み済 |
| ガス | プロパンガス |
| トイレ | 汲み取り |
| 風呂 | 灯油 |
| 水道 | その他(自家) |
| 下水道 | 汲み取り |
屋外設備
|
区分 |
内容 |
| 駐車場 | 有(3台) |
| 庭 | 有(23平方メートル) |
周辺情報
| 区分 | 内容 |
| 最寄り駅 |
JRバス東北前森前バス停下車 徒歩95分 |
| 周辺施設 |
久慈市役所まで車で27分(約13キロメートル) 久慈市役所 山形総合支所まで車で22分(約13キロメートル) 久慈市立山形小学校まで車で22分(約13キロメートル) 久慈市立山形中学校まで車で21分(約13キロメートル) 最寄りのコンビニまで約7.6キロメートル 最寄りのスーパーまで約12キロメートル
|

玄関

和室

台所

トイレ

風呂
その他
部屋数が多く、大家族にはうってつけの物件です。
屋根裏収納をはじめ、各部屋にも収納スペースがあるので、荷物が増えても安心です。


この物件に関するお問い合わせ
久慈市外にお住まいの方
久慈市内にお住まいの方
株式会社 サンホームズ
・0194-52-0077
この記事に関するお問い合わせ先
総合政策部 地域づくり振興課
〒028-8030 岩手県久慈市川崎町1番1号 本庁舎2階
電話番号:0194-52-2116
お問い合わせフォーム(メールフォームへリンクします)
更新日:2025年05月01日